Un nou gigant imobiliar pe Intrarea Străulești. Noi blocuri, cu înălţimi cuprinse între şapte şi zece etaje, ar putea fi construite în Nordul Capitalei, cu legătură directă la un proiect major de infrastructură rutieră: viitorul Drum Radial 4 Nord Expres.
Două dintre Planurile Urbanistice de Detaliu (PUD) aferente viitorului complex rezidenţial propus au fost aprobate în ședința Consiliului Local al Sectorului 1 de joi, 23 aprilie.
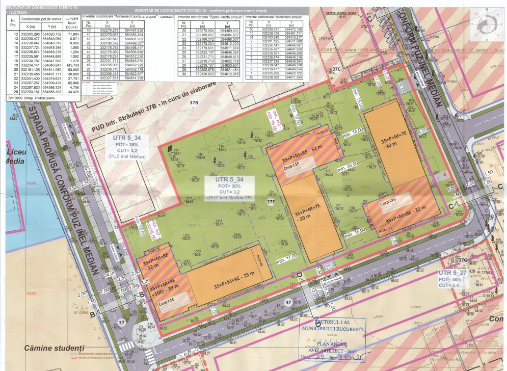
Blocuri cu regim de înălțime variabil, de până la zece etaje
Proiectele de hotărâre vizează două loturi de teren:
- Un lot de circa 9.100 de metri pătrați, liber de construcții, situat pe Intrarea Străulești nr. 37B. PUD-ul a fost solicitat de firma Winners Resources SRL

Documentul presupune construirea unui ansamblu multifuncțional, locuințe colective, servicii și comerț, alcătuit din trei imobile:
- Corp B1 – 3S+P+M+8E+9Er (trei subsoluri, parter înalt, opt etaje plus etaj 9 retras)
- Corp L1C – 3S+P+M+8E – 3S+P+M+9E – 3S+P+M+9E+10Er (trei subsoluri, parter înalt, opt/nouă/zece etaje – ultimul retras, în funcție de zona clădirii)
- Corp L1D – 3S+P+M+7E – 3S+P+M+8E (trei subsoluri, parter înalt, șapte-opt etaje, în funcție de zona clădirii)
Proiectul a fost adoptat cu 17 voturi pentru și două abțineri. Consilierii USR nu au votat.
- Un lot de teren de 11.000 de metri pătrați, liber de construcții, situat pe Intrarea Străulești nr. 37E. PUD-ul a fost solicitat de firma Ever Imo SA

Documentul presupune construirea unui ansamblu multifuncțional, locuințe colective, servicii și comerț, alcătuit din trei imobile:
- Corp L1E – 3S+P+Mz+8E-9E (trei subsoluri, parter înalt, opt-nouă etaje, în funcție de zona clădirii)
- Corp L1F- 3S+P+Mz+7E-8E (trei subsoluri, parter înalt, șapte-opt etaje, în funcție de zona clădirii)
- Corp L1G -3S+P+Mz+7E-8E (trei subsoluri, parter înalt, șapte-opt etaje, în funcție de zona clădirii)
Proiectul a fost adoptat cu 16 voturi pentru și o abținere. Consilierii USR nu au votat.
Deși cele două loturi de teren sunt deținute de firme diferite, acestea ar urma să facă parte din același ansamblu rezidențial, alături de un al treilea lot de circa 1,4 hectare, situat pe Intrarea Străulești nr. 37A, reiese din documentele consultate de Buletin de București.

Un nou gigant imobiliar pe Intrarea Străulești, „mufat” la DR4 Nord Expres
Noul proiect imobiliar este avantajat de poziția strategică de lângă viitorul DR4 Nord Expres, unul dintre cele zece drumuri radiale cuprinse în proiectul „Orbital București”, care ar urma să lege Capitala de A0.
Drumul Radial 4 Nord Expres ar urma să aibă o lungime de aproximativ 12,6 kilometri și caracteristicile unei autostrăzi sau a unui drum expres, cu patru benzi de circulație, câte două pe fiecare sens, piste pentru biciclete și trotuare, dar și o zonă dedicată transportului în comun. În plus, artera este prevăzută și cu spații de servicii, așa cum a explicat Buletin de București aici.
Viitoarea șosea ar urma să conecteze localitatea Corbeanca la Autostrada A0, urmând apoi să continue spre DNCB și Bulevardul Poligrafiei, conform traseului propus. Spre finalul lui 2025, Primăria Sectorului 1 a anunțat că proiectantul drumului de mare viteză a demarat investigațiile de teren, în vederea elaborării studiului de fezabilitate.
Studiile de teren ar trebui finalizate până la sfârșitul acestui an.
Ansamblul rezidențial propus este situat pe Intrarea Străulești, în spatele Colegiului Tehnic Media. În aceeași zonă, este propus și punctul de pornire al viitoarei artere.

Dacă proiectul Drumului Radial 4 Nord Expres se va concretiza, valoarea proiectului imobiliar ar urma să crească semnificativ, întrucât viitorii locatari ar urma să beneficieze de o conexiune directă cu Autostrada Capitalei.
Totodată, documetele consultate de reporterii BdB precizează și că terenul este cuprins în zona de servitute aeronautică (fiind aflat în apropierea Aeroportului Băneasa), ceea ce înseamnă că viitoarele construcții trebuie să respecte anumite limite pentru siguranța traficului aerian.
CITEȘTE ȘI: Drumul Radial 4, care face legătura între Corbeanca și București, a intrat în faza de proiectare
Teren rezervat pentru școală. Obligațiile de pe hârtie a dezvoltatorilor imobiliari
Autorizarea lucrărilor de construire este condiționată de încheierea unui contract între cele două firme și Primăria Sectorului 1, prin care dezvoltatorul imobiliar se obligă să asigure dotările tehnico-edilitare necesare, inclusiv terenul pentru construirea unei viitoare unități de învățământ.

Metodologia privind modul de contribuție a dezvoltatoriilor imobiliari la infrastructura educațională a fost stabilită prin Hotărârea nr. 307 din octombrie 2025, care prevede că aceasta poate fi financiară sau în natură (cedarea terenului) și se calculează în funcție de impactul proiectului imobiliar, după următoarea formulă de calcul:
Contribuţia minimă = 5 metri pătrați X nr. de apartamente prevăzute în autorizația de construire X prețul de referință al terenului stabilit conform grilei notariale
Așadar, dezvoltatorii imobiliari sunt obligați să contribuie cel puțin financiar la obținerea terenului pentru viitoarea unitate de învățământ, însă pot participa și la construcția propriu-zisă.
Care sunt firmele din spatele proiectului imobiliar
Firma Winners Resources SRL este controlată, printr-un offshore din Cipru, de Horia Ciorcilă, președintele Consiliului de Administrație al Băncii Transilvania, potrivit site-ului clujenii.ro.
Firma Ever Imo SA, fosta Țesătoriile Reunite SA, este deținută de compania de investiții Evergent Investments.
Publicația Profit.ro a scris despre parteneriatul dintre cele două societăți comerciale încă din septembrie 2022, când a început promovarea proiectului imobiliar.
