Hala Laminor, sau „Negoiță Mall”, una dintre cele mai mari investiții din bani publici ale Primăriei Sectorului 3, va găzdui atât afaceri private, cât și servicii publice, inclusiv o zonă de mall cu magazine și restaurante.
De-a lungul anilor, Primăria Sectorului 3 a cheltuit cel puțin 172 de milioane de euro pentru reabilitarea și reamenajarea halei, iar proiectul încă nu a fost finalizat.
Prin comparație, spitalul construit de asociația Dăruiește Viață (primul spital de copii pentru oncologie și chirurgie din România, situat la Marie Curie) a costat aproximativ 53 de milioane de euro. Banii au fost folosiți atât pentru construcția propriu-zisă cât și pentru dotările medicale de top.
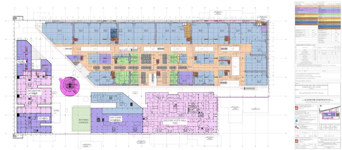
La zona de retail a viitorului „Mall Negoiță” se adaugă o școală și o clinică, ambele private, precum și o grădină botanică și un hotel, potrivit planșelor de lucru ale Algorithm Construcții consultate de Buletin de București, compania din subordinea Consiliului Local al Sectorului 3, controlată de primar, care deține amplasamentul.
Peste jumătate din suprafață a fost închiriată unei firme private, Keb Development SRL, care se va ocupa de administrarea mallului pentru următorii 35 de ani și va subînchiria spațiile.
Printre chiriașii viitorului mall se numără Carrefour, World Class și Regina Maria, cu care s-a ajuns deja la un acord, conform reprezentanților Algorithm Construcții S3. Negocierile continuă și cu alte branduri cunoscute, precum Stradivarius, Bershka, Flanco sau Cărturești, potrivit documentelor obținute de Buletin de București.
În paralel, cetățenii Sectorului 3 continuă să finanțeze Hala Laminor. În ședința de miercuri, 11 martie, Consiliul Local a decis să aloce încă 30 de milioane de euro din banii contribuabililor pentru continuarea lucrărilor.
De-a lungul anilor, Primăria Sectorului 3 a cheltuit cel puțin 172 de milioane de euro pentru reabilitarea și reamenajarea halei, iar proiectul încă nu a fost finalizat. Prin comparație, spitalul construit de asociația Dăruiește Viață (primul spital de copii pentru oncologie și chirurgie din România, situat la Marie Curie) a costat aproximativ 53 de milioane de euro. Banii au fost folosiți atât pentru construcția propriu-zisă cât și pentru dotările medicale de top.
Cum va arăta „Negoiță Mall” de la Hala Laminor
După finalizarea lucrărilor, Hala Laminor va găzdui Primăria Sectorului 3, Casa Căsătoriilor, o grădină botanică, precum și spații pentru birouri (denumite Incubatorul de Afaceri). Acestea vor rămâne în administrarea Algorithm Construcții S3 SRL.
În restul spațiului, administrat de Keb Development SRL pentru următorii 35 de ani, ar urma să se amenajeze un hotel, magazine, restaurante, un spațiu de amuzament pentru copii, un centru cultural, o școală și o clinică – ambele private, se arată în planșele consultate de Buletin de București.


Conform planurilor de mai sus, se estimează că zona de mall a Halei Laminor va putea acomoda peste 6.000 de persoane, vizitatori și angajați deopotrivă.
Ce magazine va găzdui Hala Laminor
În martie 2026, cinci chiriași confirmaseră că își vor desfășura activitatea în Hala Laminor. Este vorba despre: Carrefour, Regina Maria, Hype Family Entertainment Center, World Class Wellness Center și o școală privată.
Discuțiile continuă și cu următorii comercianți:
- Inditex (Stradivarius, Bershka, Pull&Bear)
- LPP (Reserved,Mohito,Sinsay,House, Cropp)
- Half Price/CCC/E-Pantofi/WB
- LCW
- New Yorker
- Peek & Cloppenburg
- Intersport
- JD/Sportvision
- Deichmann
- Carturesti
- DM/BIPA
- Flanco
- Symk
- Noriel
Peste 150 de milioane de euro din bugetul Sectorului 3
În luna mai a anului 2023, jurnaliștii Libertatea au dezvăluit cum costurile pentru transformarea Halei Laminor în mall se ridicau la 133 de milioane de euro. Mai mult decât toate cele trei spitale noi construite după Colectiv.
De atunci, cheltuielile au continuat să crească, iar consilierii locali au continuat să aprobe noi alocări financiare.
Cel mai recent, Consiliul Local al Sectorului 3 a decis ca Algorithm Construcții să mai primească încă 30 de milioane de euro pentru continuarea lucrărilor.
Decizia vine la scurt timp după ce, spre finalul anului trecut, compania mai obținuse nouă milioane de euro din bugetul Sectorului 3.
Editor: Cătălin Doscaș